ОСУЩЕСТВЛЁННЫЕ РАБОТЫ
ПРОЕКТЫ
ИЛЬЯ УТКИН
ТЕКСТЫ
ФОТОГРАФИЯ
МАСТЕРСКАЯ
КОНТАКТЫ
ОСУЩЕСТВЛЁННЫЕ РАБОТЫ
ПОСТРОЙКИ
ДИЗАЙН
ИНТЕРЬЕР
СЦЕНОГРАФИЯ
БРОДСКИЙ И УТКИН
ВЫСТАВКИ
ДОМ В ДЕРЕВНЕ
Тверская область.
2004 г.
НАЗАД
ФОТО ФАСАДА
ФОТО ФАСАДА
ФОТО ФАСАДА
ФОТО ФАСАДА
Фрагмент
ФОТО ФАСАДА
ФОТО ФАСАДА
Вид на местности
РАЗРЕЗ
Чертёж
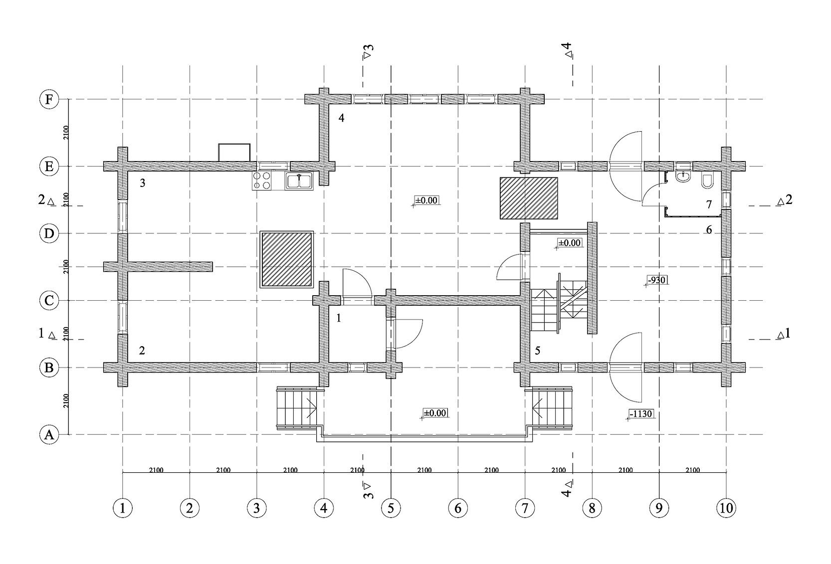
ПЛАН ПЕРВОГО ЭТАЖА
Чертёж
БОКОВОЙ ФАСАД
Чертёж
ГЛАВНЫЙ ФАСАД
Чертёж
ФОТОГРАФИИ ИНТЕРЬЕРА
ГОСТИНАЯ
Русская печь
ГОСТЕВАЯ СПАЛЬНЯ
КУХНЯ-СТОЛОВАЯ
ХОЛЛ
2-й этаж
СПАЛЬНАЯ КОМНАТА
Made on
Tilda